
Catégorie : Réhabilitation · Logements en duplex
Programme : Transformation école en 3 logements PMR, jardins privatifs, cour commune
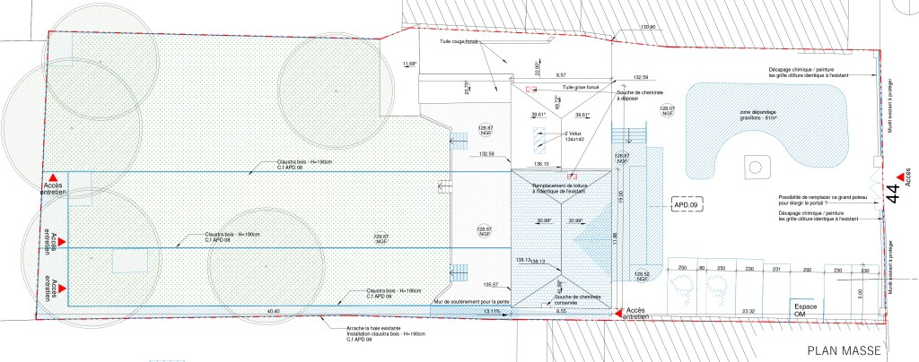
Commune: Puiseux-en-Bray (60)
Superficie de terrain / Surface de bâtiment: 837 m² / 193 m² SDP
Mission : DIAG, APS, Permis de construite, APD, PRO
Montant de travaux de base: 846 771 € HT (estimation en phase APD)
Maitrise d’ouvrage : SA HLM de l’Oise
Maitrise d’œuvre : Studio écho Architecture, Minh-A Studio, IN3TCE, ALHYANGE

Cet équipement se distingue dans son tissu rural, d’abord en raison de son emplacement sur la parcelle, en retrait de l’alignement à la rue, et aussi grâce à son écriture architecturale exceptionnelle.
L’ancienne école de Puiseux en Bray fait l’objet d’une opération de changement d’usage, d’une ancienne école en 3 logements individuels. Pour ce faire, l’espace intérieur sera reconfiguré et réhabilité de manière à créer trois logements, dont deux PMR, dans le respect des normes et de la réglementation en vigueur. Ce changement d’usage a un impact presque imperceptible sur la morphologie et l’aspect extérieur du bâtiment. Il s’agit notamment du changement des quelques menuiseries en façades – pour des raisons réglementaires avec conservation de couleur et de l’aspect extérieur. En outre, un ravalement complet de la façade sera réalisé, tout en préservant la couleur et la texture de l’enduit d’origine de l’école.

Pour entreprendre le changement d’usage de l’ancienne école, les 193m² seront divisées de manière à obtenir trois logements individuels. Touts les trois logements bénéficieront d’une double orientation, vers la cour avant et vers la cour arrière, avec une distribution des chambres sur la façade la plus calme – orientées vers les jardins privatifs.
L’intention majeure au regard de l’insertion du projet dans son environnement est d’intervenir d’une manière respectueuse de l’existant et d’articuler soigneusement les nouvelles interventions avec le « déjà-là ». Il s’agit notamment d’une revalorisation de la façade existante, qui évoque une architecture de l’époque du Louis XIII, respectant un plan homogène et l’utilisation de la brique rouge en façade. Cette revalorisation se traduit par le traitement des désordres présents sur toutes les façades et leur remise en état propre. Il s’agit d’une intervention nécessaire mais discrète qui préserve l’esprit des lieux, tout en valorisant l’aspect extérieur de l’édifice.

Ce bâtiment, qui témoigne de l’histoire des lieux, sera ainsi réhabilité de manière à préserver l’harmonie architecturale à l’échelle de la parcelle et de son environnement proche. Afin de préserver l’harmonie architecturale et l’esprit des lieux, la couleur de l’enduit de finition des quatre façades sera dans les tons existants, soit tons sable. La toiture en ardoise est en bon état, elle sera donc conservée, de même, la toiture en tuiles de terre cuite sur le préau sera conservée. La toiture en tuile du bâtiment principal (côté sud) sera réfectionnée partiellement.

Studio écho Architecture est un cabinet d’architecture spécialisé dans l’architecture éco-responsable (réhabilitations écologiques des immeubles résidentiels collectifs).

