
Catégorie : Surélévation immeuble
Programme : Etude de faisabilité & Conception architecturale
Ville : Paris (75)
Surface du projet : 262 m² ( 164 m² surface habitable · 56 m² terrasse · 42 m² toiture terrasse )
Démarche environnementale : matériaux biosourcés (bois, CLT, lamellé-collé) · isolant végétal (laine de bois, laine de coton recyclée Métis) · enduit biosourcé · ventilation naturelle · menuiserie bois et double / triple vitrage · compacité du bâti · potager urbain sur toiture terrasse

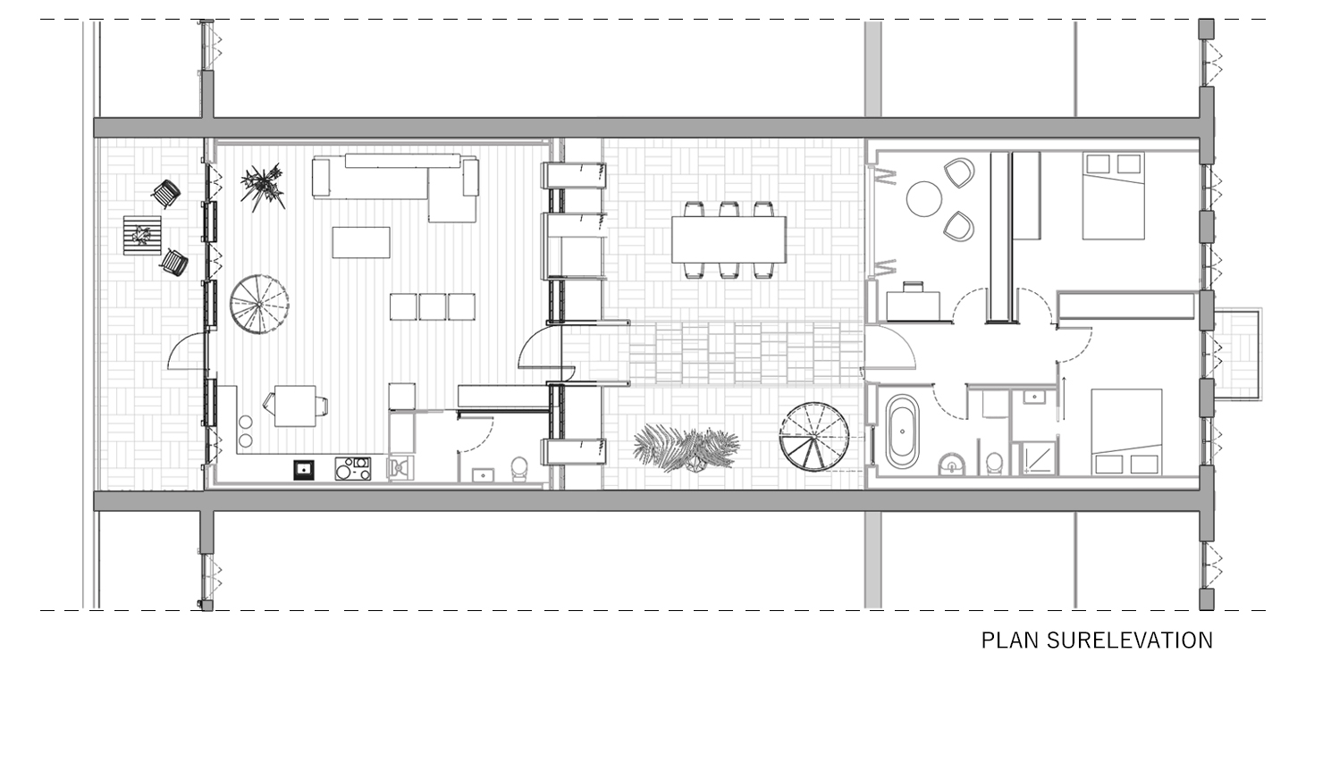
Le projet se situe au dernier étage d’un immeuble parisien et fait l’objet d’une étude de faisabilité et de conception architecturale pour la création d’une surélévation. L’objectif est de créer une surface habitable supplémentaire sur la toiture terrasse d’un bâtiment existant, et ce, en application de la loi ALUR de mars 2014.
La morphologie du bâtiment est conçue en connexion étroite avec l’extérieur : du côté de la rue bruyante, un retrait de la construction permet de protéger l’espace habitable de la pollution phonique ; la terrasse extérieure ainsi créée a aussi le rôle de barrière visuelle avec le vis-à-vis. Du côté nord du bâtiment, une deuxième cour intérieure a été imaginée pour permettre un apport solaire optimal en période hivernale et pour créer un espace extérieur de vie protégé et à l’abri des résidences voisines.


La composition volumétrique génère une succession spatiale entre l’extérieur et l’intérieur du bâtiment: terrasse extérieure – espace intérieur – cour extérieure – espace intérieur. Ce rapport d’interaction permanente entre l’espace privé et l’espace public permet de créer à la fois une connexion avec l’espace urbain de la ville et aussi une intimité caractéristique aux espaces résidentiels.

Le projet est élaboré selon les principes d’une architecture éco-responsable. Dans un premiers temps, la morphologie même du bâtiment est façonnée en fonction de la trajectoire et de l’orientation du soleil ; ce principe a été appliqué également pour l’emplacement et le dimensionnement des baies vitrées. Dans un second temps, des matériaux biosourcés ont été prévus pour les éléments structurels (poutres et poteaux en lamellé collé) et pour le plancher ( bois avec isolation végétale) ; les parois mitoyennes ont été prévues en CLT avec isolation recyclée en laine de métis tandis que l’isolation prévue pour les parois périphériques est la laine de bois. Enfin, un système de récupération d’eau pluviale à été conçu pour l’entretien du potager installé sur la toiture terrasse.
Studio écho Architecture est un cabinet d’architecture spécialisé sur l’architecture éco-responsable (surélévations écologiques à Paris et dans la région parisienne, réhabilitation écologique des immeubles parisiens, réhabilitation des établissements recevant du public, etc.).
