
IMAGE DU PROJET
Lieu de l’opération : Charenton-le-Pont (94) / Maître d’ouvrage : PROVINI
Mission : DCE | Mission pour 3AM
Signature du marché: 2022 / Surface shon – shab : 762 m2
Etape du projet : chantier en cours / Montant de l’opération: n.c € HT

COUPE DU PROJET

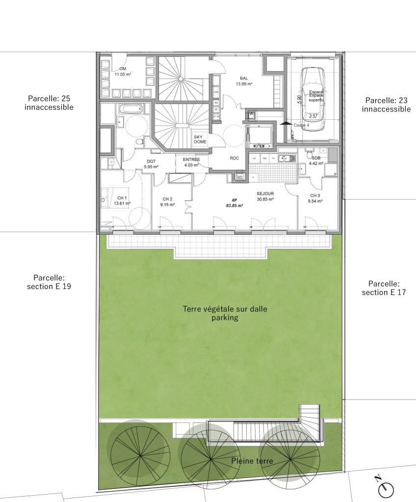
PLAN RDC

PLAN R+1
Studio écho Architecture est une agence d’architecture spécialisée sur l’architecture durable.

