
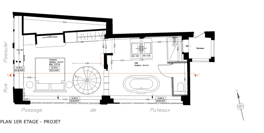
Lieu de l’opération : 8ème arrondissement, Paris (75)
Maître d’ouvrage : Hôtel Royal Madelaine
Equipe Maîtrise d’œuvre : Studio écho Architecture – effe (mandataire) – ELLIPSE (BET Structure) – AVIR (BET CVC) / AVLS (BET acoustique)
Surface SDP : 184 m²
Type de missions : mission APS, APD, Permis de Construire pour effe
Date d’achèvement ou étape du projet : dépôt PC en cours (démarrage chantier sous-sol septembre 2023)
Montant de l’opération: confidentiel










Studio écho Architecture est un cabinet d’architecture spécialisé sur la réhabilitation écologique des immeubles parisiens et de la région parisienne.

